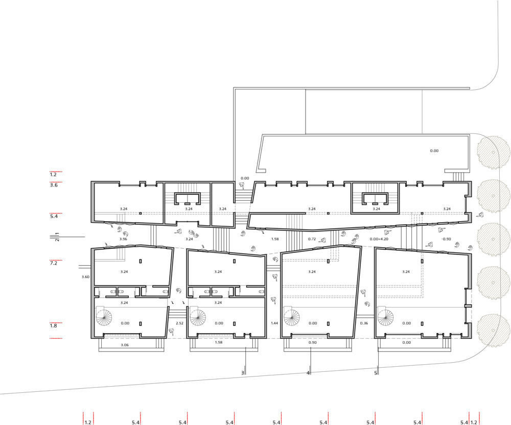
Budva
Location
Budva, Montenegro
Area
6000 m2
Year of design
2012
Project team
Djordje Gec, Nevena Pivic, Vanja Otasevic, Zorana Vasic
3D visualisation
Dejan Vukadinovic
Location
Budva, Montenegro
Area
6000 m2
Year of design
2012
Project team
Djordje Gec, Nevena Pivic, Vanja Otasevic, Zorana Vasic
3D visualisation
Dejan Vukadinovic





















