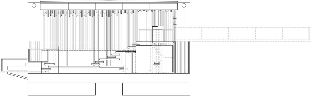
Disco Raft Sloboda
Location
Belgrade, Serbia
Area
300 m2
Year of design
2013
Year of implementation
2016
Project team
Djordje Gec, Nevena Pivic, Vanja Otasevic, Zorana Vasic, Tijana Vitomir
Photos by
Ana Kostic
3D visualisation
Dejan Vukadinovic
Location
Belgrade, Serbia
Area
300 m2
Year of design
2013
Year of implementation
2016
Project team
Djordje Gec, Nevena Pivic, Vanja Otasevic, Zorana Vasic, Tijana Vitomir
Photos by
Ana Kostic
3D visualisation
Dejan Vukadinovic

















































